info@willuhn-immobilien.de

NEU GEBAUTE VILLEN IN SAN MIGUEL DE SALINAS

Kaufpreis 429.900 €
Schlafzimmer 3
Wohnfläche ca. 292 m²

Kurzbeschriebung

NEU GEBAUTE VILLEN IN SAN MIGUEL DE SALINAS

Lage

Objektbeschreibung

NEU GEBAUTE VILLEN IN SAN MIGUEL DE SALINAS

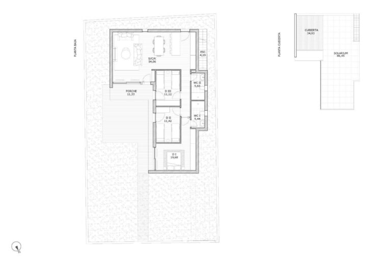
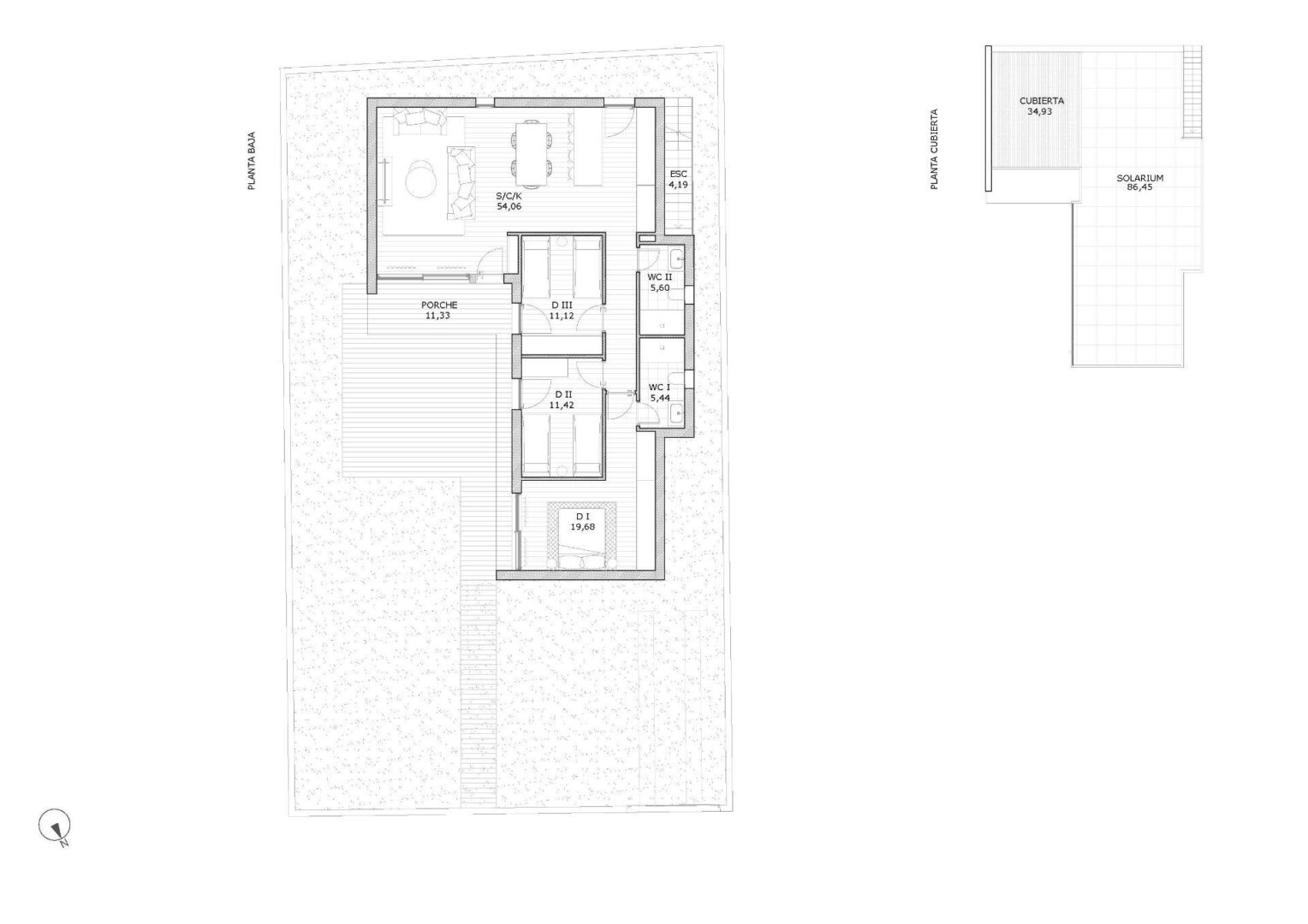
Neu gebaute freistehende Villen in San Miguel de Salinas.

Moderne Designs Villen erstellt, um die spanische Sonne zu genießen.

Villen bauen über 1 Stockwerk, hat 3 Schlafzimmer, 2 Bäder, offene Küche mit geräumigem Wohnzimmer, Einbauschränke, Terrasse und private Solarium.

Jede Villa hat ein eigenes Grundstück mit Parkplatz.
Eine Option für einen privaten Pool zu einem Aufpreis.

San Miguel de Salinas liegt in der Nähe der Golfplätze Las Colinas und Campoamor und bietet außergewöhnliche Ausblicke auf die Lagunen von Torrevieja und La Mata.

San Miguel de Salinas ist eine Gemeinde in der Valencianischen Gemeinschaft, Spanien. Sie liegt im Süden der Provinz Alicante, in der Region Vega Baja del Segura in der Nähe der Region Murcia.

Der Flughafen von Alicante ist 35 Autominuten entfernt und der Flughafen von Murcia Corvera ist etwa 1 Stunde Fahrt entfernt.

Ausstattungsbeschreibung

Entfernung zum Strand: 6000m, Garten, Solarium, Terrasse,

Objektdaten

Standort
03193 San miguel de salinas
Wohnfläche
ca. 292 m²
Grundstück
ca. 332 m²
Anzahl der Schlafzimmer
3
Anzahl Badezimmer
2
Kaufpreis
429.900 €
Verkäufer-/Vermieterprovision
0 % (inkl. MwSt.)
Käuferprovision
3.63 % (inkl. MwSt.)
Provisionshinweis
PROVISIONSHINWEIS
Interne Objekt-ID
1166
Externe Objekt-ID
MM-MN53SMDS174
OpenImmo-ID
MM-MN53SMDS174
Stand vom
10.02.2026

Energieausweis

Energieeffizienz KlasseB

Energieeffizienzklasse

A+
A
B
C
D
E
F
G
H
Ihr Kontakt
Ihr Kontakt